Details
Wonen in de Oosterparkbuurt met een ruime tuin op het Zuiden – Tweede Oosterparkstraat 148
De Tweede Oosterparkstraat 148 is een verrassend ruime woning met vier kamers, een ruime woonkeuken en een grote tuin op het Zuiden.
Dit appartement op de begane grond en eerste verdieping ligt midden in één van de leukste buurten van Amsterdam.
De woning is onderdeel van het appartementencomplex Oosterplaza dat tussen het Eikenplein en het Beukenplein in ligt.
Het moderne gebouw, ontworpen door de architect Erna Sambeek werd in 1998 opgeleverd.
Indeling
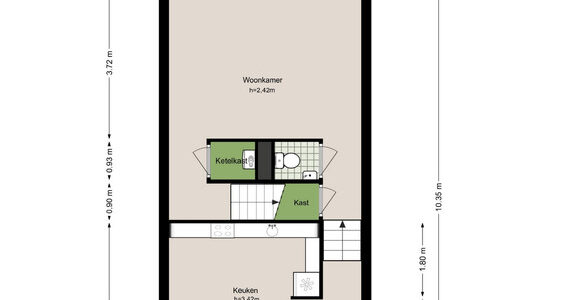
Zodra je de voordeur binnenstapt, valt meteen op hoe verrassend en slim de woning is ingedeeld. Op de begane grond vind je direct de prettige woonkeuken. De woonkamer bevindt zich aan de tuinzijde, wat een lichte en uitnodigende sfeer geeft.
Deze benedenwoning met eerste verdieping heeft op de begane grond een ruime woonkeuken aan de voorzijde van de straat met een schitterend groot raam wat voor veel lichtinval zorgt en heeft een zeer hoog plafond. Via een kleine trap staat de woonkeuken in verbinding met de woonkamer, de garderobe en de wc beneden.
Aan de woonkamer grenst de veranda met over de gehele breedte glazen schuifdeuren waardoor er veel licht in de kamer valt. De zon schijnt er van ‘s ochtends vroeg tot het begin van de avond. Ook is er zonwering aangelegd zodat je beschut op de veranda kunt zitten. Via een kleine trap kom je in de ruime groene tuin met een verscheidenheid aan planten, bomen en struiken waardoor er altijd iets gedurende de seizoenen in bloei staat. In de tuin is tevens een stenen zitgedeelte tegen de veranda aangelegd. Ook is er een beschut terrasje achter in de tuin, waar zich een kleine opbergruimte bevindt voor tuingereedschap.
Vanaf de veranda stap je via een trap direct de ruime achtertuin in van circa 60 m2 in. Hoe heerlijk is het om na je werk nog even in de avondzon te zitten met een drankje, of je kinderen vrij te laten spelen op je eigen groene stukje Amsterdam?
De omringende tuinen met veel bomen bieden een oase aan rust voor vogels die de omgeving opluisteren met hun gezang.
De woonkeuken en woonkamer hebben dezelfde mooie hardhouten parketvloer waardoor het een mooi geheel is.
Eerste verdieping
Via de woonkamer bereik je de trap die naar de eerste verdieping leidt. De ruime hal verbindt alle ruimtes met elkaar: de drie slaapkamers, een wasmachine kast en de badkamer met wc en douche.
Aan de achterzijde ligt een ruime slaapkamer met een Frans balkon met, net als beneden, over de gehele breedte glazen schuifdeuren, zodat je een prachtig zicht hebt op de tuin.
De twee andere slaapkamers liggen aan de voorkant van het appartement.
De gehele eerste verdieping is voorzien van een houten parketvloer van Canadees hout.
Het huis is heel praktisch ingedeeld zodat elk gezinslid of huisgenoot genoeg privacy en ruimte voor zichzelf heeft.
Ligging
De Tweede Oosterparkstraat 148 ligt in een aantrekkelijke en veelzijdige buurt met het Oosterpark direct om de hoek, het Beukenplein met restaurants, cafe’s en koffiebars en met een diversiteit aan winkels.
En aan de andere kant van het Oosterpark ben je zo bij het Tropenmuseum, Artis of de Hortus in de prachtige Plantagebuurt.
Ook aan deze kant van het park zijn veel restaurants en cafés.
Bereikbaarheid
Binnen 8 minuten ben je in het centrum van Amsterdam met de fiets of een tram.
Via de Wibautstraat ben je zo op de A10 en ben je snel de stad uit. Het Amstelstation en het Muiderpoortstation liggen ook beiden op steenworp afstand. En het metrostation Wibautstraat ligt aan het einde van de Tweede Oosterparkstraat.
Je woont hier heerlijk rustig, en toch is alles binnen handbereik.
Duurzaamheid en comfort
Het appartementencomplex waarin de woning zich bevindt is opgeleverd in 1998, met een stevige fundering én hedendaags comfort. Met een woonoppervlakte van 100 m2 is er verrassend veel ruimte, zowel om te leven als om op te bergen.
Er bevindt zich in het gemeenschappelijke gedeelte van het complex nog een berging waar eventueel fietsen gestald kunnen worden.
Het huis heeft dubbele beglazing en door de constructie is het in de wintermaanden warm en in de zomer koel in huis.
Oosterplaza heeft een actieve en goedlopende VVE.
Bijzonderheden
• Energielabel A
• Erfpacht afgekocht tot 1-11-2047
• 3 slaapkamers
• Heerlijke tuin met balkon aan de achterzijde op het Zuiden
• Bouwjaar 1998
• VVE premie is € 160,23
• Dubbelglas en cv-ketel
Voor wie
Of je nu een starter bent, of een jong gezin, die op zoek is naar een huis met een tuin waar je kinderen veilig en in alle rust kunnen spelen èn waarbij de woning een zeer praktische indeling heeft, of je bent juist zoekende naar een compactere woning met een begane grond – hier vind je jouw perfecte basis. De tuin, het balkon, de drie slaapkamers en de centrale ligging maken deze woning tot een zeldzame kans in de populaire Amsterdamse Oosterparkbuurt.
I N F O & D O C U M E N T E N;
Op onze eigen website/tabblad “Bieden en woning informatie” kunt u de stukken van de betreffende woning downloaden, de eigen woning website bekijken en een bod uitbrengen. Tevens is er een eigenwoning website: adres + huisnummer . nl.
D I S C L A I M E R;
Alle informatie heeft nadrukkelijk een indicatief karakter en wordt onder voorbehoud verstrekt; er kunnen geen rechten aan worden ontleend. Verrekening wegens over- of ondermaat wordt uitgesloten, oplevering in overleg, aanbieding vrijblijvend. De verkoopclausule, ouderdomsclausule en









































































