Details
ENGLISH TRANSLATION BELOW | STIJLVOL WONEN IN JULIA’S PARK | IDEALE SAMENSMELTING VAN NATUUR EN STADSE CHARME | 7 SLAAPKAMERS | 3 BADKAMERS |
In het hart van het prestigieuze Benoordenhout, een van de meest geliefde wijken van Den Haag, bevindt zich dit exclusieve herenhuis in het bijzondere afgesloten wooncomplex Julia’s Park. Dit complex werd in 2019 volledig vernieuwd en biedt een perfecte combinatie van klassieke allure en modern comfort. Te midden van prachtig aangelegde parkgronden geniet u hier van rust, ruimte en privacy — terwijl het bruisende stadsleven zich op slechts enkele minuten afstand bevindt. Met zeven royale slaapkamers, drie luxueuze badkamers, een hoogwaardige keuken en een schitterende zonnige achtertuin, is dit een woning die werkelijk niets te wensen overlaat. Daarbovenop beschikt u over twee privé parkeerplaatsen.
L O C A T I E
Julia’s Park biedt wonen op niveau: een groene, rustige omgeving met het comfort en de dynamiek van de stad binnen handbereik. De residentie ligt tussen de prachtige landgoederen Clingendael en Oosterbeek, in een internationale omgeving met uitstekende scholen en organisaties. Op loopafstand vindt u de sfeervolle Van Hoytemastraat, bekend om haar boetieks, speciaalzaken, gezellige cafés en hoogwaardige restaurants. Sportliefhebbers hebben keuze te over met faciliteiten voor tennis, hockey, golf, squash en voetbal in de buurt.
Binnen enkele minuten bereikt u bovendien zowel de duinen van Meijendel als de stranden van Scheveningen – ideaal voor ontspanning in de natuur. Julia’s Park verenigt op unieke wijze groen wonen met het comfort van de stad.
I N D E L I N G
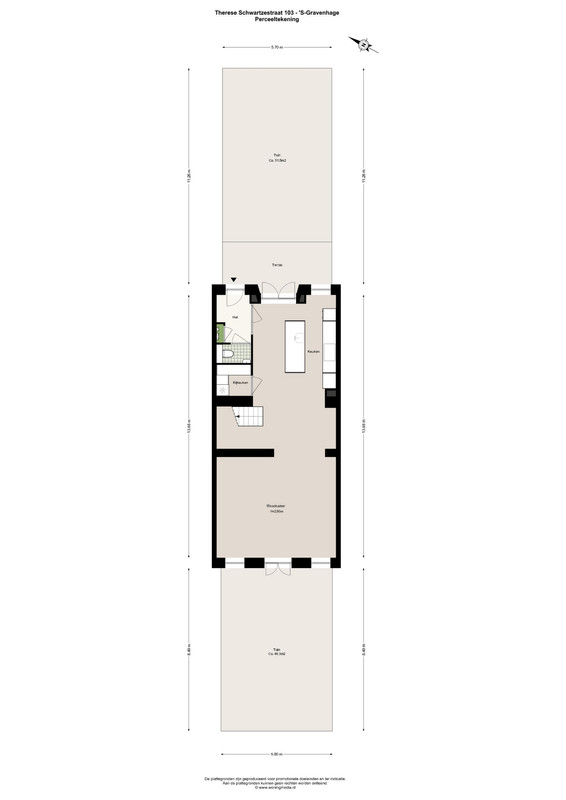
Bij binnenkomst via de ruime hal betreedt u een lichte en stijlvolle woonverdieping met houten vloer gelegd in Hongaarse punt. De luxe designkeuken is voorzien van een centraal kookeiland, klassieke AGA met een gietijzeren kern. Deze kern houdt warmte op bijzonder efficiënte wijze vast en geeft het langzaam door aan de vier ovens en kookplaten en is altijd klaar voor gebruik, een ingebouwde klimaatkast voor wijnliefhebbers, koel en vrieskast, vaatwasser en Quooker. De aangrenzende woonkamer straalt elegantie en warmte uit, met hoge plafonds (2,93m), grote raampartijen en openslaande deuren naar de fraaie tuin (ca. 52m2) op het zuidoosten – een perfecte plek om te ontspannen of gasten te ontvangen.
Op de eerste verdieping bevinden zich drie ruime slaapkamers, separaat toilet, stijlvolle badkamer met inloopdouche en sauna. De master bedroom beschikt over een royale inloopkast en (de tweede) luxe en-suite badkamer met dubbele inloopdouche, ligbad en dubbele wastafel.
De tweede verdieping biedt nog eens 3 slaapkamers, badkamer met ligbad, inloopdouche, toilet en wastafel en een wasruimte.
Via een vaste trap bereikt u de derde verdieping waar de royale 7de slaapkamer zich bevindt.
Buiten is de privé berging en gezamenlijke fietsenstalling aanwezig evenals de twee privé parkeerplaatsen voor deur.
B I J Z O N D E R H E D E N
• Vloerverwarming in alle vertrekken
• Domotica systeem voor bediening verwarming, licht etc. middels app en per ruimte bediening;
• Energiezuinig ventilatiesysteem met warmteterugwinning
• Energielabel A
• Volledig geïsoleerd
• Voorzien van glasvezel
• Achtertuin van circa 58 m² op het zuidoosten, grenzend aan het privé park van het complex alleen toegankelijk voor bewoners.
• Aga fornuis met diverse ovens en snelkook en sudderplaat met zelfregulerende werking.
• Fraai aangelegde parkachtige omgeving
• Oorspronkelijk bouwjaar 1940, volledig vernieuwd in 2019
• Zeven slaapkamers
• Drie badkamers waarvan 1 met sauna
• High-end keuken en luxe sanitaire voorzieningen
• Woonoppervlakte: ca. 261 m² (volgens de NEN2580-meetinstructie)
• Privé berging en gezamenlijke fietsenstalling aanwezig
• Twee privé parkeerplaatsen, plus extra bezoekersplekken
• Houten (Hongaarse punt) en gietvloeren
• Gelegen op eigen grond
• Unieke locatie in de voormalige Prinses Juliana kazerne (gemeentelijk monument) met aangelegd gezamenlijk park
• VvE-bijdrage: € 403,71 (woning) + € 53,34 (parkeerplaats en berging) per maand
• Kindvriendelijke woonomgeving
• Oplevering in overleg
I N F O & D O C U M E N T E N
Op onze eigen website/tabblad “Bieden en woning informatie” kunt u de stukken van de betreffende woning downloaden, de eigen woning website bekijken en een bod uitbrengen. Tevens is er een eigenwoning website: adres + huisnummer . nl.
Alle informatie heeft nadrukkelijk een indicatief karakter en wordt onder voorbehoud verstrekt; er kunnen geen rechten aan worden ontleend. Verrekening wegens over- of ondermaat wordt uitgesloten, oplevering in overleg, aanbieding vrijblijvend. De verkoopclausule, ouderdomsclausule, niet bewonersclausule en toelichtingsclausule NEN2580 zijn van toepassing, op te vragen via ons kantoor.
ENTHOUSIAST GEWORDEN?
Dat kunnen wij ons voorstellen. Bij nadere interesse adviseren wij u zeker een afspraak voor een vrijblijvende bezichtiging te maken. Ook op zaterdag is Apollo Makelaardij bereikbaar om afspraken in te plannen !







































































































