Details
Op zoek naar een prachtige nieuwe woning? Dit ruime en lichte appartement, gelegen in een mooie rustige en zeer groene wijk van Delft, staat op de eerste verdieping van een net onderhouden appartementencomplex met lift is precies wat u zoekt! Het appartement is een zeer goede onderhoudsstaat en is zeer ruimtelijk. Een zonnig balkon, ruime woonkamer, slaapkamer en open keuken bieden voor zowel starters als doorstromer een mooie uitkomst met een woonoppervlak van 63m². Het appartement bevindt zich op loopafstand van het winkelcentrum (De Hoven Passage), de lokale basisschool (IKC De Eglantier Voorhof) en is zeer makkelijk te bereiken (nabij N470 via A13). Naast de woonruimte beschikt het appartement over een berging bij het appartement op de eerste etage, alsook een aparte berging op de begane grond. Ook met het openbaar vervoer is dit appartement goed te bereiken.
Indeling
Begane grond:
Beveiligde entree, bellentableau en deur naar de trap. Ook de aparte berging ad 5m² bevindt zich op de begane grond en is gelegen vlakbij de entree. Parkeren is gemakkelijk, er is plek genoeg direct voor de deur.
Appartement:
Bij binnenkomst treft u de ontvangsthal met aan de rechterkant de berging. Als u via de kamerdeur de eetkamer binnenkomt, ziet u de open verbinding naar zowel de woonkamer als keuken met aan de linkerkant nog de meterkast. De lichtinval vanuit de grote ramen in de woning verlicht met gemak deze gehele open ruimte wat zorgt voor een aangename sfeer. Tegenover de entreedeur naar de eetkamer bevinden zich de moderne badkamer en het toilet, alsmede de toegang naar het slaapvertrek. Aangelegen aan de achterkant van het appartement bevindt zich een ruim balkon met veel zon en een zeer fraai uitzicht.
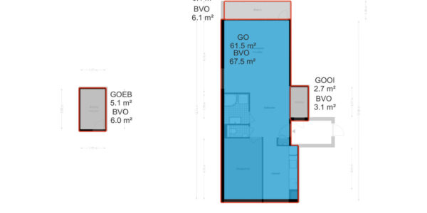
Voor een duidelijk overzicht van de indeling en afmetingen verwijzen wij u graag naar de bijgevoegde plattegronden.
Bijzonderheden:
– geheel voorzien van dubbele beglazing
– verwarming centraal geregeld met moderne ketel voor lage stookkosten (ad. circa €125 p/m)
– eigen berging in onderbouw
– gezonde en actieve VVE met MJOP gericht op verduurzaming (i.e. kostenverlaging). Bijdrage: circa €290,- per maand
– bouwjaar: 1968
– energielabel E
– oplevering mogelijk vanaf 26 november 2025
I N F O & D O C U M E N T E N
Op onze eigen website/tabblad “Bieden en woning informatie” kunt u de stukken van de betreffende woning downloaden, de eigen woning website bekijken en een bod uitbrengen. Tevens is er een eigenwoning website: adres + huisnummer . nl.
Meetrapport NEN2580
Bruto Vloeroppervlak woning 70,60 m2
G.O. Wonen 61,50 m2
G.O. Overige inpandige ruimte 2,70 m2
G.O. Gebouwgebonden buitenruimte 6,10 m2
G.O. Externe bergruimte 5,10 m2
Bruto Inhoud woning 204,74 m3
ENTHOUSIAST GEWORDEN?
Dat kunnen wij ons voorstellen. Bij nadere interesse adviseren wij u zeker een afspraak voor een vrijblijvende bezichtiging te maken. Ook op zaterdag is Apollo Makelaardij bereikbaar om afspraken in te plannen !
DISCLAIMER
Alle informatie heeft nadrukkelijk een indicatief karakter en wordt onder voorbehoud verstrekt; er kunnen geen rechten aan worden ontleend. Verrekening wegens over- of ondermaat wordt uitgesloten, oplevering in overleg, aanbieding vrijblijvend. De verkoopclausule, ouderdomsclausule, asbestclausule en toelichtingsclausule NEN2580 zijn van toepassing, op te vragen via ons kantoor.

































































