Details
Licht 2-kamerappartement met afgekochte erfpacht in de Indische Buurt.
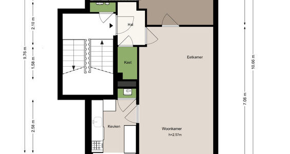
Dit slim ingedeelde appartement heeft een zonnige ligging en is gelegen op de 1ste verdieping. Entree via een halletje met voorziening voor jassen/tassen en een ruime bergkast. De woonkamer, met dubbele beglazing, ligt aan de zonnige voorzijde van de woning en is ruim en licht. De keuken, ook aan de voorkant gelegen en eveneens met dubbel glas, heeft een fijn overdekt balkon, waar van de middag- en avondzon kan worden genoten.
De ruime slaapkamer ligt aan de achterkant en grenst aan een gemeenschappelijke rustige, groene binnentuin. De slaapkamer heeft eveneens dubbel glas en een Frans balkon.
Grenzend aan de slaapkamer bevindt zich de badkamer, met originele Granito vloer en ligbad.
De binnentuin is slechts toegankelijk middels een toegang binnen het gebouw en kan worden benut voor rust en (stille) recreatie. De binnentuin (evenals het gebouwencomplex) wordt goed onderhouden (VvE).
De VvE is actief en eigenaren hebben geen omkijken naar schilderwerk appartement, schoonmaak trappenhuis, reparaties aan diversen (bijv. intercom, verlichting, postvakken trappenhuis e.d.)
De ligging in de bruisende en hippe Indische buurt is perfect. Horeca (Wilde Zwijnen, Bar Basquiat, Het Badhuis) liggen om de hoek. Het Flevopark en Oosterpark bevinden zich op loopafstand en in de Javastraat vindt men talloze winkels, supermarkten en eettentjes. Bus- en tramverbindingen liggen rondom het Javaplein en NS-station Muiderpoort op 15 min loopafstand. Een parkeervergunning is relatief snel verkregen en op zondag is het gratis parkeren in Oost.
De woning in het kort;
-Woonoppervlak: 56m², efficiënt ingedeeld.
-Energielabel: B
-Ruime berging beneden.
-Zonnige ligging: Woonkamer en keuken met balkon op het westen voor middag- en avondzon.
-Rustige nachtrust: Slaapkamer aan de tuinzijde (oosten), weg van de straat.
-Buitenruimte: Toegang tot een goed onderhouden, gemeenschappelijke binnentuin.
-De erfpacht is aflopen op 01-12-2032 en kan onder gunstige voorwaarden worden herzien.
-Actieve VvE: Het complex wordt goed onderhouden.
-VVe premie is € 126,81 per maand.
– Direct beschikbaar.
I N F O & D O C U M E N T E N;
Op onze eigen website/tabblad “Bieden en woning informatie” kunt u de stukken van de betreffende woning downloaden, de eigen woning website bekijken en een bod uitbrengen. Tevens is er een eigenwoning website: adres + huisnummer . nl.
D I S C L A I M E R;
Alle informatie heeft nadrukkelijk een indicatief karakter en wordt onder voorbehoud verstrekt; er kunnen geen rechten aan worden ontleend. Verrekening wegens over- of ondermaat wordt uitgesloten, oplevering in overleg, aanbieding vrijblijvend. De verkoopclausule, ouderdomsclausule en toelichtingsclausule NEN2580 zijn van toepassing, op te vragen via ons kantoor.
E N T H O U S I A S T;
Dat kunnen wij ons voorstellen. Bij nadere interesse adviseren wij u zeker een afspraak voor een vrijblijvende bezichtiging te maken.























































